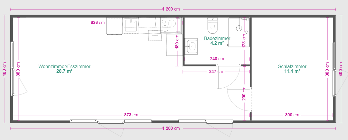
Wohnhaus Panorama 12X5 75.500€ zzgl. MwSt.
Technische Daten
Hinweis: Die Lieferung ist im Preis nicht inbegriffen. Je nach Bundesland liegen die Lieferkosten inklusive Kranentladung zwischen 3800 und 7800€ zzgl. MwSt. (Schwertransport mit Pilot Begleitung)
Konstruktion und Isolierung
Innenausstattung






