Modulhaus-Z-Doppelstock 8X3 89.000€ zzgl. MwSt.
Technische Daten
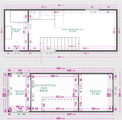
- Außenmaße: 8,00 × 3,00 m (bestehend aus zwei Module)
- Innenhöhe: 2,5m
- Firsthöhe: 5,7m (Satteldach)
- Bodenbelag: PVC Linoleum
Hinweis: Die Lieferung ist im Preis nicht enthalten. Je nach Bundesland liegen die Lieferkosten inkl. Kranentladung bei 4800 – 9000€ zzgl. MwSt.
Konstruktion und Isolierung
Dach: 100 mm. PIR-Sandwichplatte – 0,21 U w/m2k
Wand: 100 mm. PIR-Sandwichplatte – 0,21 U w/m2k
Boden: 100 mm. PIR-Sandwichplatte – 0,21 U w/m2k 100
MODULHAUS – FENSTER & TÜREN
Fenster und Türen – Verglasung:
Dreh-Kipp Fenster 200x100 cm: Dreh-Kipp Fenster 50x50 cm:
Fix-verglastes Fenster 200x100 cm> Eingangstür 210x110 cm:
Dreifachverglaste Aluminiumfenster und Türen
2 Stk. 1 Stk 2 Stk 1 Stk
MODULHAUS – INNENAUSSTATTUNG
Badezimmer: Küche: :
Klimaanlage (2 Stk):
Stand-WC, Waschbecken mit Unterschrank und LED-Spiegel, Duschkabine 80x90 cm, Boiler 70 Liter, Heizkörper Küche mit: Kühlschrank, Kochfeld, Spüle, Ober- und Unterschränke, Geschirrspüler Klimaanlage in Wohnzimmer (Kühlen und Heizen)
ELEKTROINSTALLATION (PRO WOHNUNG) Steckdosen: 12 Stk. Einzelsteckdosen Lampen: 12 Stk. SPOTS-LAMPEN Schaltern: Für alle Lampen Verteilerkasten: 1 Stk. (beliebig platziert)
Elektroanschluss: 1 Stk. Starkstromanschluß von außen (beliebig platziert) SANITÄRINSTALLATION Wasser und Abwasser, sowie komplette Sanitärinstallationen bereits ab Werk vorinstalliert. Anschliessen ist im Preis nicht inbegriffen.





