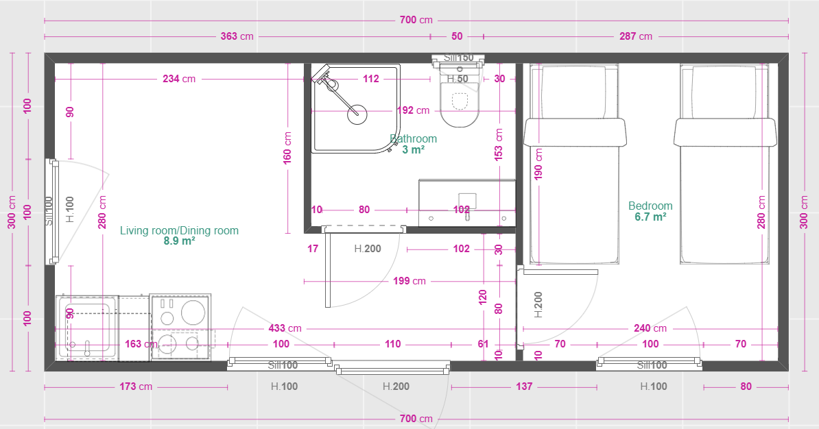
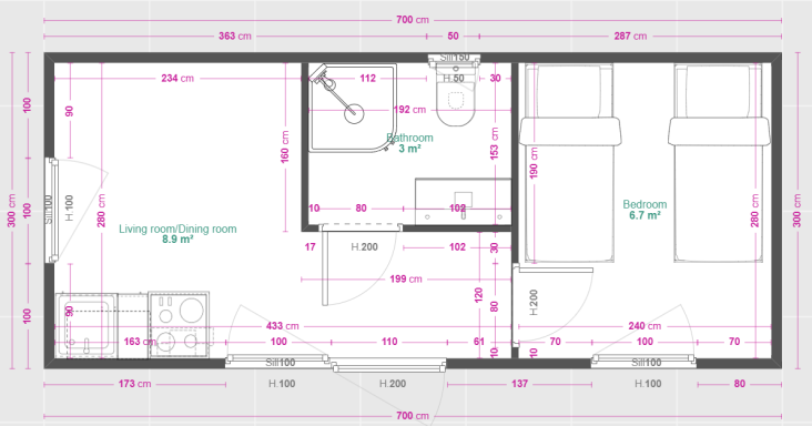
Premium Tiny House Rhein 7X3
42.900€ zzgl. MwSt.
Technische Daten
Hinweis: Die Lieferung ist im Preis nicht enthalten. Je nach Bundesland liegen die Lieferkosten inkl. Kranentladung bei 1800 – 2700€ zzgl. MwSt
Konstruktion und Isolierung
Innenausstattung






